beat365在线唯一官网
设为首页
加入收藏
网上办事大厅
首页
beat365在线唯一官网
学校介绍
学校领导
机构设置
师院新闻
学院动态
校园风采
学习新思想
习近平文汇
学习新思想
学习理论
强国复兴有我
评建专栏
评建专栏
师范认证
本科教育教学审核评估专题
国际交流
通知公告
文明创建
师资队伍
专业建设
专科生培养
本科生培养
成人教育
教学资源
招生信息
科学研究
信息公开
党的二十届三中全会
通知公告
当前位置:
首页
>
通知公告
> 正文
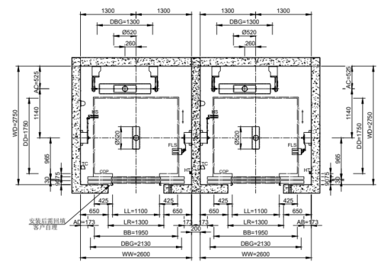
图书信息楼电梯拆除及电梯土建部分改造采购公告
发布日期:2022-05-29 作者: 来源:
附件
3
附件
4
附件
5
上一页
[1]
[2]
[3]
[4]
上一篇:
会场网络设备升级改造采购公告
下一篇:
beat365在线唯一官网学术报告厅多媒体教学显示系统采购竞争性磋商公告